Cheap Property for Sale
12,371 properties below €100,000 in 98 countries
 See all Properties  See all Properties

2-Bedroom Apartment with Pool View in Florenza Khamsin

  
  
  
  
  

€ 85,000

£74,169.30
$98,234.50

2-Bedroom Apartment with Pool View in Florenza Khamsin

Florenza Khamsin is a fully completed and already inhabited residential complex located in one of the most central and desirable areas of Hurghada – Arabia district.

The complex offers a comfortable lifestyle with swimming pools, landscaped green areas, and a private internal courtyard. Everything you need — shops, cafés, the promenade, and the sea — is within walking distance. This makes it perfect both for permanent living and profitable rental investment.

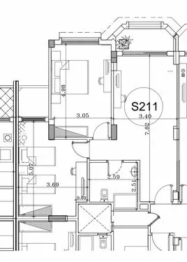
🐚 Apartment S211

Total area: 102.31 sqm
• 2 bedrooms
• 1 comfortable bathroom
• 2nd floor
• Pool view
• 2 balconies

This apartment features a functional layout and beautiful pool views. Two balconies provide additional space for relaxation and plenty of natural light. A perfect choice if you want a well-designed home at a more attractive price than larger units — without sacrificing comfort.

💰 Price:

Cash price: 4,743,910 EGP (85,000 €)
Installment price: 5,929,888 EGP (106,700 €)

📑 Payment Plan (3 years):

• 30% down payment
• 70% in 12 quarterly installments

✔ Fully completed and operational complex
✔ Swimming pools & landscaped territory
✔ Prime central location
✔ Ideal for living or investment

Apartment

Property ID: 78146

For:
Sale
Floor area:
102 m²
Built in:
2013
Presently:
Empty
No. of bathrooms:
2

Egypt

Al Bahr al Ahmar

Address:
Hurgada, Egypt, Hurghada
Hurghada, Arabia
Close to:
Historic centre, School, Kindergarten, Hospital, Bus stop, Public square, Leisure centre, Touristic area, Beach.
Setting:
Town, City, Beach.

Contact me about this property for sale

The Horizon Real Estate
Maria Fade
Phone: +20 100 4545 121

see all properties for sale from Maria  Fade

Maria
Please solve the captcha.