Cheap Property for Sale
11,304 properties below €100,000 in 94 countries
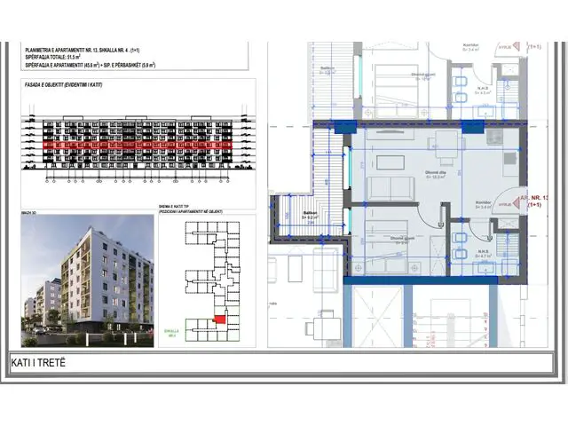
 Back to Property Details  Back to Property Details

APARTMENTS FOR SALE IN GOLEM, NEW BUILDING! - Photo Gallery