Cheap Property for Sale
11,493 properties below €100,000 in 95 countries
 See all Properties  See all Properties

Land with project approved Silver Coast Portugal

  
  
  
  
  
  
  
  
  
  

€ 57,500

£50,117.00
$68,206.50

Land with project approved Silver Coast Portugal

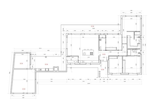
Land with 3 915 m2 and a project to a Four-bedroom house, in Casal do Rodo – Alvorninha, Caldas da Rainha, Silver Coast Portugal.
The house consists of: Lounge, kitchen, storage room and laundry, 4 bedrooms, 2 of them en-suite with wardrobes, garage, technical room and garden.
Land has an urban area of 1600 m2 allowing other options of construction, like building two or three houses.
Location:
200 m from the village
1,5 km from Almofala
12 km from Caldas da Rainha and A8
20 km from Foz do Arelho beach
35 km from Nazaré
1 hour from Lisbon airport

The project is under approval in Caldas Town Hall .

Asking price:
Land with project approved: 72 500 €
Sale now: 57.500 €

Site

Property ID: 69478

For:
Sale
Floor area:
200 m²
Size of land:
3915 m²
No. of bathrooms:
4

Portugal

Leiria

Address:
Rua dos Moinhos Casal do Rodo Alvorninha Caldas da Rainha Portugal
Caldas da Rainha
Setting:
Countryside, Village, Beach.

Contact me about this property for sale

Private Seller
Please solve the captcha.