Cheap Property for Sale
12,782 properties below €100,000 in 97 countries
 See all Properties  See all Properties

Lot for sale at the ' Estancia Villa Maria ' Buenos Aires .

  
  
  
  
  
  
  
  
  
  
  

€ 69,875

£60,529.22
$81,767.73

Lot for sale at the ' Estancia Villa Maria ' Buenos Aires .

If you keep up with the World News , say today the 6th March 2026 , there is no better time to consider a move to a friendly South American country and in particular Argentina . How about as a suggestion the - ' Estancia Villa Maria ' , Buenos Aires
The outlook for the West , Europe and further afield makes extremely grim reading to put the situation mildly !!
So why not consider .............

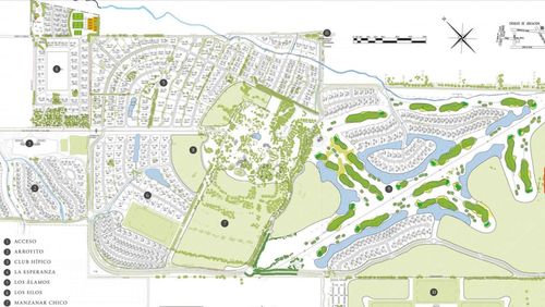
This Country Club development is situated close to Canning, Ezeiza. It is approximately a 45 minute drive from Buenos Aires City centre and is around a 15 minute drive from the Ezeiza International Airport. This development is of interest to International buyers and is a high end investment. This 2A.14 lot measures approximately 2026 SM and is nicely very situated within the ' Los Arroyitos ' Equestrian residential area. There is a water lagoon to the rear end of the garden. The lot is ready for a house construction, subject to all the necessary planning consents. The electricity, water , optic fibre and sewerage services are in place in readiness for connections as required.
Many house builds have been completed , so far within the Estancia and more are under construction at present. In the region of 120 or so houses are either complete with construction or in the process of building . There are families already resident at the Estancia as well as ' weekend ' get-away people from the City enjoying the pleasures of this great development. The Estancia provides excellent sporting facilities throughout , including a Polo field, a football pitch , a 18 hole golf course and Equestrian centre both of which have their own modern clubhouses. Also available are other horse riding options near the hotel area together with tennis courts and a swimming pool . A Tudor Style Manor house hotel is centrally placed within the tree lined grounds with alternative amenities available. The Estancia Villa Maria is a very tranquil setting in which to enjoy the pleasures of life and more . What better place to consider moving to , building your own house ( with home office )
and enjoy the pleasures of family life outside the city . Now is the time to rethink your future , the city office is mostly certainly in the main , something of the past . Home working is for sure the future for so many people . The immediate area of Canning is growing enormously with shops , banks all facilities . Take advantage of a serious lifestyle change . The owner is from the UK . ANY INTERESTED INVESTOR TO PROVIDE A ' GENUINE ' TELEPHONE CONTACT NUMBER as well as email address.

Site

Property ID: 11719

For:
Sale
Habitable:
No
Size of land:
2026 m²
Extras:
With (or near) lake, Serviced, With road front, Accessible by car.

Argentina

Buenos Aires

Address:
Ave Pereda
1812
Canning Ezeiza , Buenos Aires , Argentina .
Canning , Ezeiza
Close to:
Shopping area.
Setting:
Countryside, Town.

Contact me about this property for sale

Private Seller
Please solve the captcha.