Cheap Property for Sale
10,638 properties below €100,000 in 89 countries
 Back to Search Results  Back to Search Results

Modern house with passed plans to build garden and parking

  
  
  
  

€ 30,000

£26,235.00
$34,998.00

Modern house with passed plans to build garden and parking

Modern house with passed plans to build garden and parking Sea view in
Varna Modern vision, excellent performance with non-standard design,
beautiful garden, parking lots and favorable exposure - these are the
advantages of the new house you can even put a pool in the garden,
which we present to you in Izgrev - a new, rapidly developing district
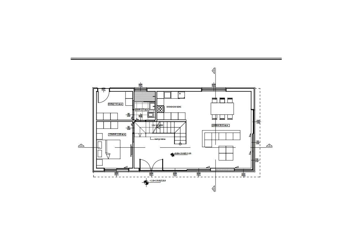
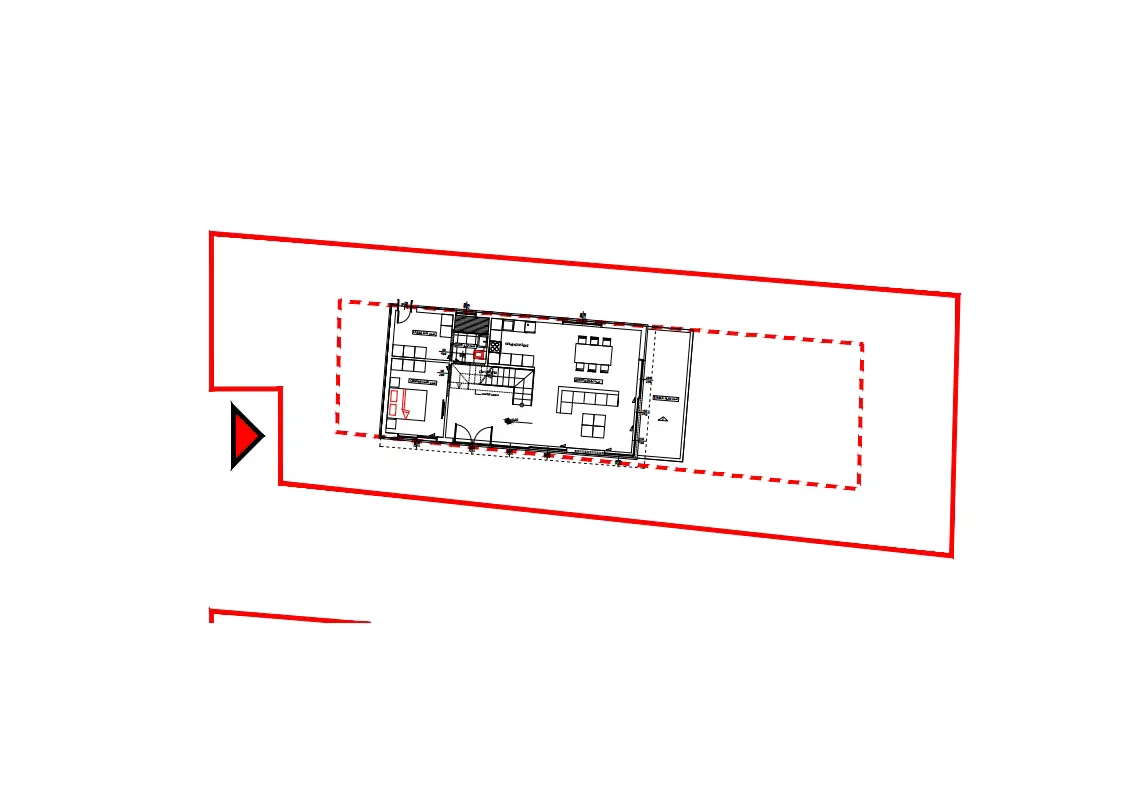
of Varna. The property will be built on a plot of about 480 m2, as the
total built-up area is 190 m2. The distribution of the property is as
follows: First floor - spacious entrance hall, closet, bathroom and
toilet, storage, wonderfully bright and high living room with French
windows overlooking the porch; laundry room Second floor - two
bedrooms, both with en-suite shower and toilet, private bathroom on
the floor, laundry room. with French windows overlooking the balcony
and a view over Varna Amazing building land and ready project for a
modern house of 190sqm. in Izgrev quarter - Varna city. Road access,
electricity, water, and main drains next to the plot. With Seaview.

Region: Varna
Residential district: Izgrev

Distance to:
Capital city Sofia : 440 km / 273.24 miles
Sea capital city Varna : 3 km / 1.86 miles
Burgas city : 131 km / 81.35 miles
Nearest administrative centre : 3 km / 1.86 miles
Black sea and sea resorts : 4 km / 2.48 miles
The International Airport : 7 km / 4.35 miles

Condition: New
Stage of construction: Under Construction
Year built: 2022
Structure: New Brick
Documents: Notary Act
Owners: 1
Window frames: PVC
Balconies: 1
Parking places: Yes

Price: € 30 000.00
Area: 190 sqm
Type: Modern Style

Site

Property ID: 45288

For:
Sale
Size of land:
190 m²

Bulgaria

Varna

Address:
varna
varna

Contact me about this property for sale

Bulgaria Property Finder Ltd
Zack Qureshi
Phone: 07988744886

see all properties for sale from Zack Qureshi

Please solve the captcha.