Cheap Property for Sale
10,637 properties below €100,000 in 89 countries
 Back to Search Results  Back to Search Results

Vrnjacka Banja - Raj under construction 1650e/m2 VAT is not

  
  
  
  
  
  
  
  
  
  
  
  
  
  
  
  

€ 37,801

£33,056.97
$44,098.65

Vrnjacka Banja - Raj under construction 1650e/m2 VAT is not

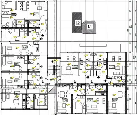
I am selling 9 apartments under construction, Vrnjačka Banja, Raj settlement
The price in the current phase is 1650e per m2 (we calculate the usable area).
Contact +38163477189 can call, sms, wacap, viber and +381695048087.
The 3D images of the apartments are informative, the studios will have a French terrace, and the other larger apartments will have a classic terrace.
- in LAMELI 1 on the first floor, FLAT number 6, which consists of a hallway, a living room with a kitchen and a dining room, a bathroom, a room and a terrace with a total net area of ​​36.38 m2, and a usable area of ​​35.29 m2,
- in LAMELI 1 on the first floor, FLAT number 8, which consists of a hallway, a living room with a kitchen and a dining room, a bathroom, a total net area of ​​27.41 m2, and a usable area of ​​26.59 m2,
- in LAMELI 1 on the second floor, APARTMENT number 12, which consists of a hallway, a living room with a kitchen and a dining room, a bathroom, a room and a terrace, with a total net area of ​​35.82 m2, and a usable area of ​​34.75 m2,
- in LAMELI 2 on the ground floor, FLAT number 4, which consists of a hallway, living room with kitchen and dining room, bathroom, wardrobe and bedroom, total net area 39.65m2, and usable area 38.46m2, with this apartment you get about 10m2 of yard, free.
- in LAMELI 2 on the first floor, FLAT number 9, which consists of a hallway, a living room with a kitchen and a dining room, a bathroom, a room and a terrace, with a total net area of ​​39.54m2, and a usable area of ​​38.35m2,
- in LAMELI 2 on the second floor, APARTMENT number 15, which consists of a hallway, a living room with a dining room, a bathroom, a kitchen, two rooms and a terrace, with a total net area of ​​48.95 m2, and a usable area of ​​47.48 m2,
-in LAMELI 2 on the third floor, FLAT number 17, which consists of a hallway, a living room with a kitchen and dining room and a bathroom, with a total net area of ​​23.62 m2, and a usable area of ​​22.91 m2,
- in LAMELI 2 on the third floor, FLAT number 18, which consists of a hallway, a living room with a kitchen and dining room and a bathroom, with a total net area of ​​23.62 m2, and a usable area of ​​22.91 m2 and
- in LAMELI 2 on the third floor, FLAT number 20, which consists of a hallway, a living room with a dining room, a bathroom, a kitchen, two rooms and a terrace, with a total net area of ​​48.95 m2, and a usable area of ​​47.48 m2 and
- Also, I am selling 4 parking spaces, price 5000e, per space.

Apartment

Property ID: 58388

For:
Sale
Floor area:
23 m²

Serbia

Vrnjacka Banja

Address:
Vrnjacka Banja
Vrnjacka Banja

Contact me about this property for sale

Private Seller
Please solve the captcha.